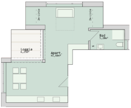
Wohnung 10 in Haus 4

Dachgeschoss, 1,5 Zimmer mit Loggia

Jetzt anfragen...

ECKDATEN

254.900,00 €

Raum Fläche
Apartment 41,60 m²
Bad 5,20 m²
Loggia 6,25 m² (Anrechnung zu 50%)
Wohnfläche 49,93 m²

Die Ausstattung / Interieur

Auch bei der Innenausstattung überzeugen hochwertige Materialien, gekonnt gesetzte Akzente, Qualität und Design. Neben der sorgfältig gewählten Grundausstattung laden wir Sie ein, Ihr neues Zuhause individuell nach Ihren Wünschen und Vorstellungen zu gestalten.
In allen Räumen sorgt eine Fußbodenheizung für angenehme Wärme.

Lichtdurchflutet & freundlich
Jede Wohnung verfügt über mehrere bodengleiche Kunststofffenster. Da die Grundrisse an den Lauf der Sonne ausgerichtet sind, wirken die lichtdurchfluteten Räume hell und freundlich.

Durchweg elektrisch betriebene Rollläden und Jalousien ermöglichen eine komfortable Regulierung von Licht und Sichtschutz und tragen zugleich zur Energieeffizienz sowie zum Wohnkomfort bei.

Entspannung unter freiem Himmel
Zusätzlichen Raum für Entspannung unter freiem Himmel bieten die jeder Wohnung zugeordneten Außenbereiche: Im Erdgeschoss stehen Terrassen zur Verfügung, im 1. und 2.

Obergeschoss Balkone, und das Dachgeschoss verfügt über eine Loggia.

Elegante Badezimmer
Die Badezimmer werden mit hochwertigen Materialien ausgestattet und bieten teilweise eine Kombination aus Dusche und Badewanne. Edle Fliesen, moderne Armaturen und durchdachte Ausstattungen schaffen ein luxuriöses Ambiente, das Komfort und Stil perfekt vereint.

Stellplätze
Die zwei Häuser werden im Untergeschoss mit einer Tiefgarage verbunden. Hier entstehen 20 PKW-Stellplätze sowie großzügig ausgelegte Abstellräume inklusive Fahrradabstellplatz. Alle PKW-Stellplätze werden mit Stromanschlüssen ausgestattet, sodass bei Bedarf die Möglichkeiten für E-Ladestationen bestehen.

Solide und wertbeständig
In diesem idyllisch gelegenen Neubaugebiet entstehen zwei moderne und zeitgemäße Mehrfamilienhäuser mit barrierefreiem Zugang zu den soliden und wertbeständigen Wohnungen. In allen zwei Häusern ermöglicht jeweils ein komfortabler Aufzug von der Tiefgarage bis ins Dachgeschoss einen hindernisfreien Wohnungseintritt.

Die Verwendung regenerativer Energien wird im Wohnungsbau ein immer bedeutenderer Faktor.

Energieeffizient
Der energetische Standard des KfW-Effizienzhaus 40 wird durch bauliche und anlagentechnische Maßnahmen zur Verbesserung der Energieeffizienz sowie die Einbindung erneuerbarer Energien erreicht.

Schallschutz
Alle zwei Häuser werden in Holzständerbauweise mit Betondecken für einen besseren Schallschutz erstellt.

Nachhaltige Energieversorgung und smarte Steuerung
Jedes Haus ist mit einer effizienten Sole/Wasser-Wärmepumpe samt Tiefenbohrung ausgestattet.

Über die einzeln steuerbaren Fußbodenheizungen in den verschiedenen Zimmern kann die Temperatur nach Belieben gesteuert werden. Der Strom wird über eine PV-Anlage erzeugt und zur Verfügung gestellt.

Die Häuser sind jeweils mit einer Lüftungsanlage mit Wärmerückgewinnung ausgestattet. Selbstverständlich werden alle gesetzlichen Anforderungen der energetischen Fachplanung und Begleitung der Baumaßnahme erbracht und deren programmgemäße Umsetzung bestätigt. Ein Energieausweis auf Grundlage des Energiebedarfs nach Abschnitt 5 EnEV für das fertig gestellte Gebäude liegt bei Kauf vor.

Jedes Wohnhaus erhält eine Briefkastenanlage mit Klingeltaster und Video-Sprechanlage.

Wunschlos glücklich und überzeugt?

Dann melden Sie sich gerne bei uns. Zu offenen Fragen, Ihren persönlichen Wünschen oder direkt zu Ihrem neuen Zuhause.

    Bitte beweise, dass du kein Spambot bist und wähle das Symbol Herz.

    Zurück zur Übersicht

    zurück...